• Photo
    Photo
    Photo
    Photo
    Photo
    Photo
    Photo
    Photo
    Photo
  • Plan
    Plan
  • Gallery
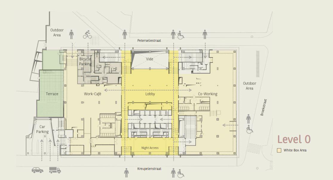
  • Plan
Ref: 2313018
Offices To Let

The Hive
Rue du Marais 2 - 1000 Bruxelles

Available space :
32514.00 sq.m
From :
1929.00 sq.m
Bertrand COTARD
+32460 95 06 00
Contact me
Offices To Let 2313018
Rue du Marais 2 - 1000 Bruxelles
Bertrand COTARD
+32460 95 06 00
You are : *
CAPTCHA

BNP Paribas Real Estate Belgium SA/NV, a public limited company, 235 Avenue Louise/Louizalaan, 1050 Brussels uses cookies and other methods to process information about you (such as identification data, including your contact details) for the purposes of processing the requests that you send to us via the website and, in some cases, for marketing purposes. For further information about how BNP Paribas Real Estate Belgium SA/NV processes your personal data in this context and about your rights (including your rights of access, correction, objection to processing for marketing purposes and your right to give instructions on how your personal data will be used after your death as well as, in certain circumstances, a right to erasure, to restrict processing, to data portability and a right to object to other forms of processing) and BNP Paribas Real Estate Belgium SA/NV's obligations in this area, please take a look at our Data Protection Notice available at https://data-privacy.realestate.bnpparibas/

Description

The Hive project, located at the intersection of Rue du Marais and Rue des Boiteux in Brussels, is an ambitious initiative by BNP Paribas Fortis to reinvent urban workspace. Scheduled for 2026, this project aims to provide modern and innovative offices in the city center, meeting the needs of today's and tomorrow's occupants. Designed with sustainability in mind, The Hive aligns with goals to reduce the carbon footprint through eco-friendly construction and innovative energy solutions. The building incorporates environmentally respectful materials and emphasizes smart resource management. The idea is to create a flexible workplace that fosters collaboration and employee well-being. Modular spaces adapt to teams and enable a hybrid organization between remote working and in-office presence. Relaxation areas, a splendid rooftop, and soft mobility infrastructures are included to offer a stimulating and balanced work environment. Thanks to its central location, The Hive boasts excellent accessibility by public transport and bicycle, reducing car usage. This project also reflects a desire to anchor offices within the urban fabric by integrating spaces accessible to the public, such as shops and meeting areas. The Hive caters to occupants seeking an inspiring, connected, and sustainable environment. This project aims to combine economic performance, environmental respect, and quality of life, right in the heart of Brussels.
Read more

Surface details

Floor Available space Nature
6 2260.00 sq.m Office
7 1929.00 sq.m Office
2 4097.00 sq.m Office
-2 853.00 sq.m Archive
3 3783.00 sq.m Office
0 357.00 sq.m Consult us
-1 187.00 sq.m Consult us
-1 357.00 sq.m Consult us
1 4097.00 sq.m Office
0 4315.00 sq.m Office
2 314.00 sq.m Consult us
-3 1946.00 sq.m Archive
4 3783.00 sq.m Office
5 3783.00 sq.m Office
6 328.00 sq.m Consult us
7 283.00 sq.m Consult us
-1 4467.00 sq.m Office
Nature Available space
Global 32514.00 sq.m
Min. 1929.00 sq.m
Reference Floor 4000.00 sq.m
Office 32178.00 sq.m

Location and transport

Railway Station

Brussels Congres

Tramway

750,00 m

Bus

180,00 m

Metro

450,00 m

Offer suggestions